جدول المحتويات
خريطة جنوب صباح الاحمد كاملة، والتي تعد واحدة من المشروعات الحديثة التي تتم في دولة الكويت خلال الوقت الحالي، وتضم عدداً كبيراً من الوحدات السكنية التي تستوعب عدداً كبيراً من السكان، ومن خلال موقع ويكي الكويت سوف يتم التعرف على أهم ما يخص هذا المشروع السكني العمراني الجديد، وكم عدد الوحدات السكنية الموجودة فيه، وصور خريطة هذه المدينة بشكل تفصيلي.
مدينة جنوب صباح الاحمد بالكويت
مدينة جنوب صباح الأحمد هي إحدى المدن السكنية الموجودة في دولة الكويت، والتي توجد في منطقة صباح الأحمد بمحافظة الأحمدي في الكويت على بعد 80 كيلومتر جنوب مدينة الكويت، ولقد بدأ تنفيذ البنية التحتية لهذا المشروع في شهر أبريل من عام 2023 ميلاديًا، وتبلغ مساحة هذه المدينة حوالي 61 ألف متر مربع تقريبًا، كما قد تم تقسيمها إلى 12 ضاحية سكنية حيث تضم مجموعة من الوحدات السكنية يبلغ إجمالي عددها 20 ألف وحدة سكنية، ويشرف على تنفيذ مشروع هذه المدينة المؤسسة العامة للرعاية السكنية في الكويت، ويتم بالتتابع استكمال المشروع بعد إنشاء البنية التحتية الخاصة به.[1]
اقرأ أيضًا: متى تأسست مدينة صباح الاحمد
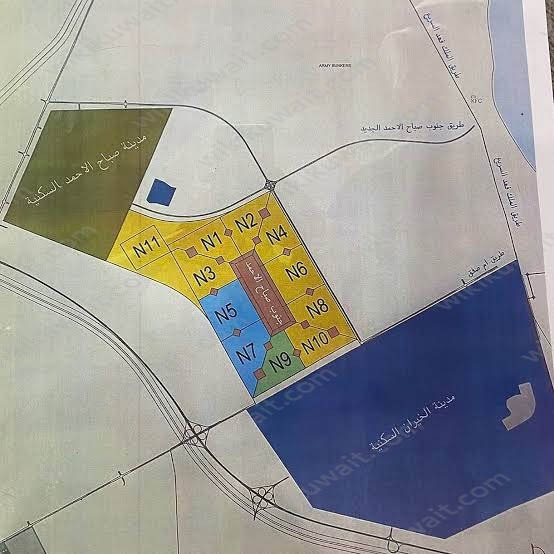
خريطة جنوب صباح الاحمد
فيما يلي سوف يتم التعرف على بعض صور خريطة مدينة جَنوب صَباح الاحمَد والتي تضم مجموعة من الضواحي السكنية والمقسمة إلى آلاف الوحدات السكنية:[1]
اقرأ أيضًا: مساحة مدينة صباح الأحمد
خريطة جنوب صباح الاحمد Pdf
يمكن تحميل الخريطة الكاملة لمدينة جَنوب صَباح الاحمَد في الكويت بصيغة pdf مباشرةً “من هنا“، حيث يمكن من خلال النقر على هذا الرابط الاطلاع على عدد الضواحي التي تضمها تلك المدينة، وكذلك الأماكن الموجودة حولها، كما يمكن النقر على زر (تحميل) أو (Download) من أجل تحميل هذا الملف على الهاتف المحمول وأجهزة الكمبيوتر من أجل الرجوع إليه في أي وقت.
وفي الختام تم التعرف على خريطة جَنوب صَباح الاحمَد كاملة، كما تم التعرف على أهم ما يخص هذا المشروع السكني العمراني الذي تتم إقامته في الوقت الحالي في الكويت، وكيفية تحميل الملف الذي يحتوي على هذه الصور.
أسئلة شائعة
مدينة جنوب صباح الاحمد تقع في أي محافظة؟
مدينة جنوب صباح الاحمد تقع في محافظة الأحمدي.
كم مساحة مدينة جنوب صباح الاحمد؟
تبلغ مساحة مدينة جنوب صباح الاحمد 61 الف متر مربع
كم عدد ضواحي مدينة جنوب صباح الاحمد؟
يبلغ عدد ضواحي مدينة جنوب صباح الاحمد 12 ضاحية.
المراجع
- ^Pahw.gov.kw , جنوب صباح الأحمد , 19/08/2023



